AVANT
Après
Avant
Après
Avant
Après
PROJETS PRIVÉS
Avant
Pour une clientèle russe : création de pièces de réception en enfilades, séparées des 3 suites privatives, comprenant chambre, dressing et salle de bain attenants. Isolation phonique et thermique
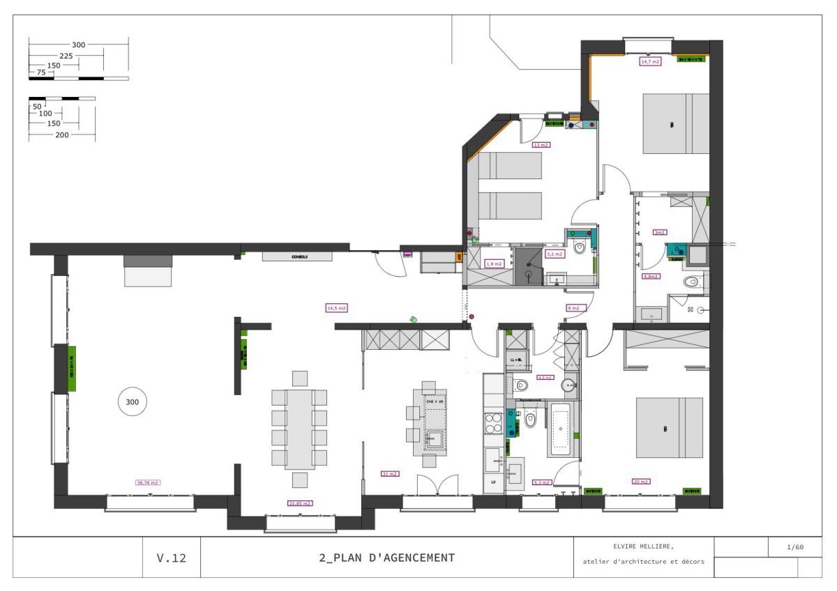
Restructuration totale d'un appartement avec reprise en sous-oeuvre.
Chauffage par le sol, isolation des plafonds.
PIED-A-TERRE, 170 m2,             PARIS VII
RESTRUCTURATION 64 m2,     PARIS IX
APRES
Petit budget et petits délais pour se sentir chez soi
Transformation d'un 3 pièces en 2 pièces. Création d'une salle de bain dans la cuisine. Transformation de l'ancienne salle de bain en dressing. Création d'une cuisine ouverte.
Si on peut refaire sa déco, on change difficilement son plan.
 
Nous sommes forts en propositions esthétiques, mais notre souci premier est de faire  des projets, dont l'ergonomie correspond à la vie des habitants.
Pour de la location touristique : Transformation d'un local commercial vétuste et sombre, en
une habitation lumineuse. Creation de terrasse, salle de bain et cuisine ouverte.
Pour famille nombreuse : Agrandissement de 110 m2 par récupération de combles perdues. Percement de trémie pour escalier sur mesure. Isolation toiture, pose de velux. Création de points d'eau, wc et placards en sous pente.
Pour un couple et 3 enfants : restructuration d'un plateau de 100 m2. Percement de 3 baies de souffrance, création cuisine ouverte, salles de bain et chambres.
Coup de neuf à petit budget dans Immeuble moderne pour un appartement en rdc
Coup de neuf pour une maison dans son jus depuis 30 ans : ouverture partielle de la cuisine sur le salon et reprise de l'atmosphère deco.
Ancien placard transformé en chambre :
Après
Avant
Optimisation pour famille nombreuse : Création d'une chambre dans un cagibi, récupération des combles. Cuisine semi-ouverte pour une vie ensemble. Création d'une entrée et d'un wc séparé.
Pour de la location saisonnière :
Transformation d'un 2 pièces en studio
PETITE RENO EN COULEURS,
PARIS XIV
REUNION DE 2 APPARTEMENTS A SUFFREN, PARIS XV
LOOK CLASSIQUE,
PARIS VI
Pour musicien : Esprit masculin dans un local carrelé, sombre et froid, repensé en  lieu de vie et de musique.
CONCEPTION RENOVATION D'UNE MAISON A COLOMBES
CONCEPTION 96 m2 SOUS LES TOITS,
PARIS XVII
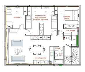
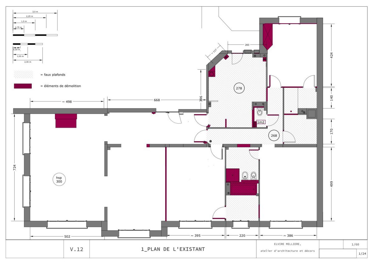
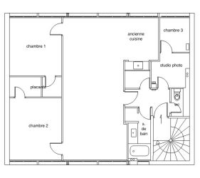
OPTIMISATION D'UNE MAISON D'OUVRIERS POUR JEUNES CSP+,
SURESNES
Pour un jeune couple 1 enfant : optimisation maximale des combles au jardin : Décaissement et étude du réseau d'égoûts, transformation d' un "basement" en RDC de plain pied avec salle de bain, création d'escalier, des espaces cuisine/ salle à manger/ salon, création d'une  buanderie dans une ancienne cuve à mazout.
 
Pour un jeune couple : Ambiance minimaliste.
Aménagement d'un plateau nu au dernier étage d'un immeuble réhabilité.
ELVIRE M. atelier d'architecture et décors
À PROPOS 
MISSIONS 
BOOK
CV 
CONTACT 
DESIGN MOBILIER
cinéma publicité événementiel 
Commercial 
Privé 
DECORS EN IMAGES 
ARCHITECTURE EN IMAGES